Appartamento in Vendita a Volvera
Zona: Zucche
Classe energetica
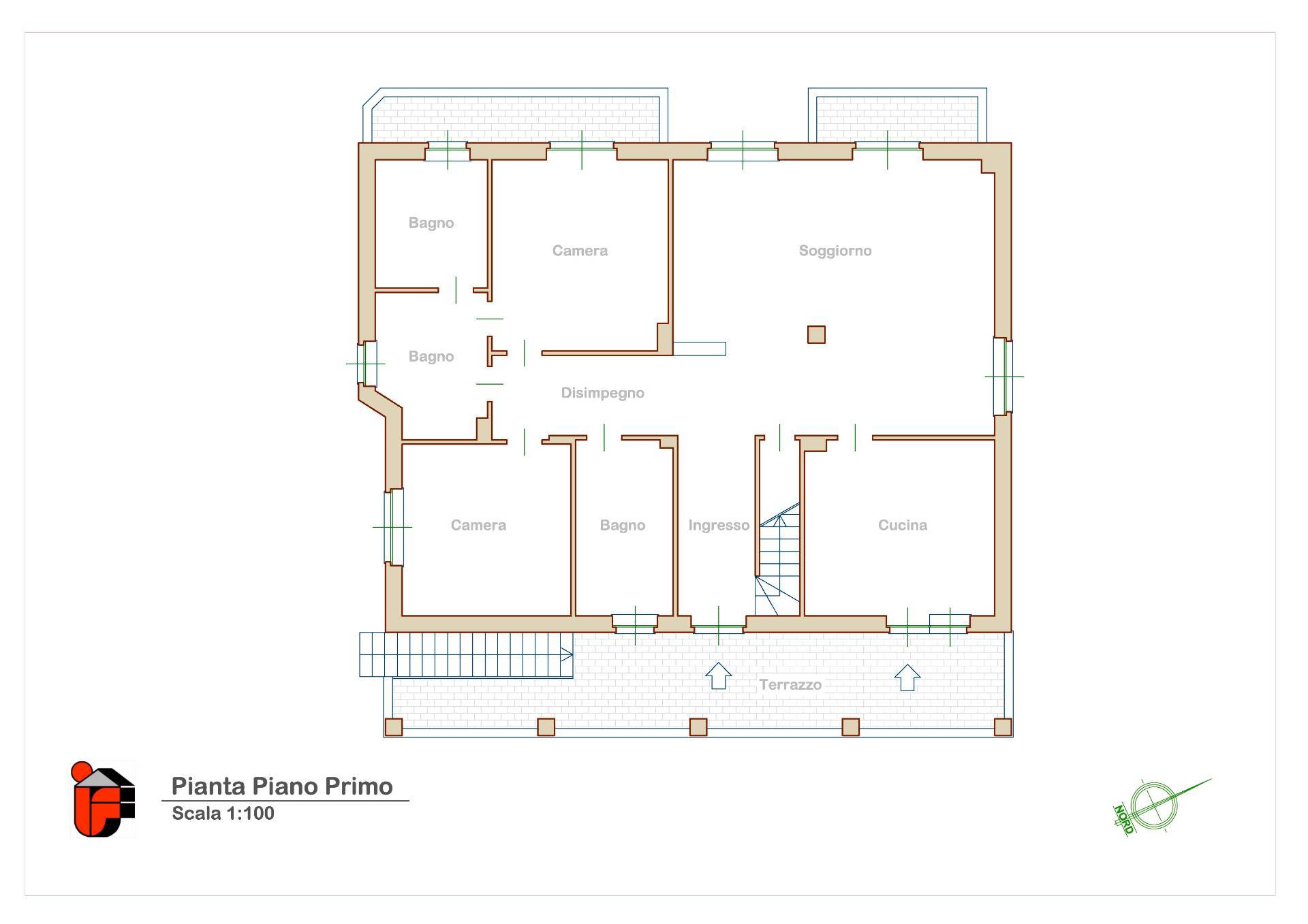
Vendesi a Volvera, alloggio in casa bifamiliare posto al primo piano.
L'ingresso alla casa si apre su un ampio e accogliente soggiorno, dotato di caminetto e grandi finestre che garantiscono una piacevole luminosità naturale oltre ad uno spazioso balcone.
La cucina abitabile, anch'essa luminosa si affaccia su uno spazioso terrazzo, perfetto per godersi una colazione all'aperto o una cena al tramonto.
La zona notte è composta da due ampie camere da letto, una dotata di bagno privato e balcone,oltre a due bagni.
Dall'ingresso una comoda scala in muratura vi conduce alla mansarda open space.
Completano la proprietà due posti auto coperti e dal giardino comuune.
Questo Appartamento è ideale per una famiglia numerosa o per chi cerca ampi spazi abitativi.
L'immobile è dotato di riscaldamento autonomo, garantendo così una gestione delle spese più contenuta.
Si trova in una zona tranquilla e ben servita, a pochi minuti dal centro del paese e vicino a tutti i principali servizi, come scuole, negozi e mezzi pubblici.
Contattaci
Immobiliare Ferrero
Piazza Marconi, 31
Vinovo (TO)
Telefono 011 9652893
Fax 011 9652893
Cellulare 335 5297942
info@immobiliareferrero.it

Ferrero Luana
Telefono 0119652893
Fax 0119652893
Cellulare 3355297942
luanaferrero@immobiliareferrero.it
Immobili simili
Ultimo aggiornamento 27-01-2026






















