Appartamento in Vendita a Castagnole Piemonte
Zona: Centro
Classe energetica
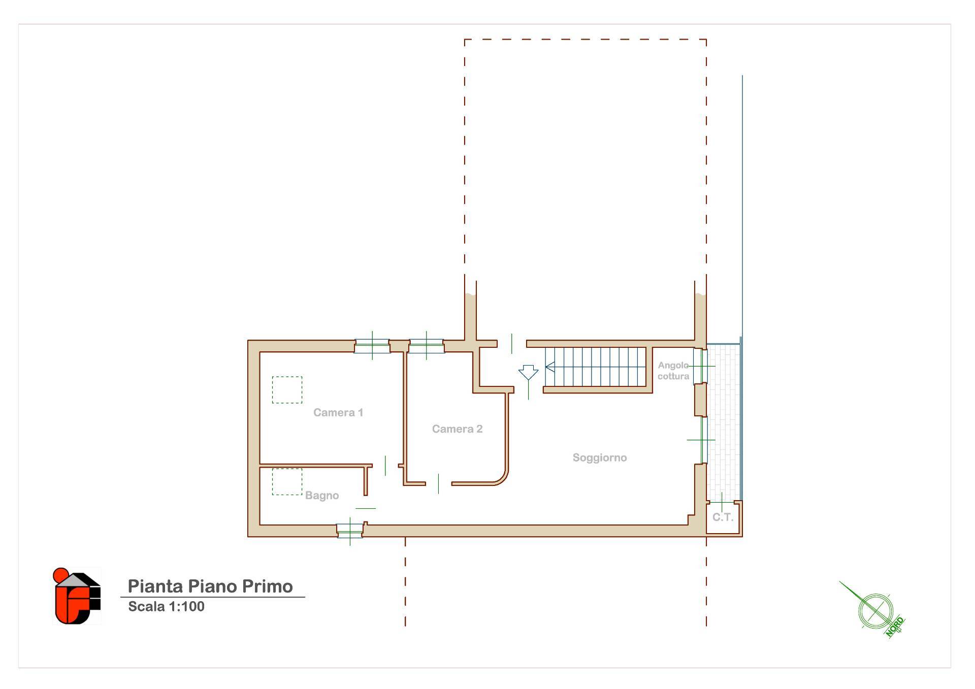
Castagnole Piemonte, vendesi Appartamento posto all'ultimo piano di un cascinale ristrutturato interamente nel 2006.
L'abitazione è composta da tre locali, perfetti per una coppia o una piccola famiglia.
Ci sono due camere da letto, un comodo soggiorno con angolo cottura e un bagno moderno con tutti i comfort.
Lo stato di conservazione dell'Appartamento è ottimo, non ci sono lavori da fare e tutti gli impianti sono a norma.
Gli infissi e le finestre sono in doppio vetro e legno, per garantire un'ottima isolamento termico e acustico.
Inoltre, la presenza di un sistema di allarme rende l'abitazione ancora più sicura e tranquilla.
L'Appartamento viene venduto non arredato, in modo da dare la possibilità all'acquirente di personalizzare gli spazi a proprio gusto.
Completa la proprietà un box auto singolo, perfetto per chi ha la macchina o la moto.
L'Appartamento dispone anche di una porzione di soffitta, per riporre oggetti.
Il riscaldamento è autonomo, quindi i costi sono controllati e gestiti direttamente dal proprietario.
Adatto sia per chi desidera una prima casa, sia per chi cerca un investimento immobiliare sicuro.
Richiesta euro 135.000,00 trattabili.
Contattaci
Immobiliare Ferrero
Piazza Marconi, 31
Vinovo (TO)
Telefono 011 9652893
Fax 011 9652893
Cellulare 335 5297942
info@immobiliareferrero.it

Ferrero Luana
Telefono 0119652893
Fax 0119652893
Cellulare 3355297942
luanaferrero@immobiliareferrero.it
Immobili simili
Ultimo aggiornamento 27-01-2026























