Casa indipendente in Vendita a Piobesi Torinese
Zona: Piobesi
Classe energetica
Ci riporta ad atmosfere antiche questo splendido cascinale immerso nella campagna piemontese nel Comune di Piobesi T.se. situato a pochi minuti dal centro abitato e a meno di venti Km. dal centro di Torino.
Una proposta immobiliare unica nel suo genere che si svipulla su più livelli.
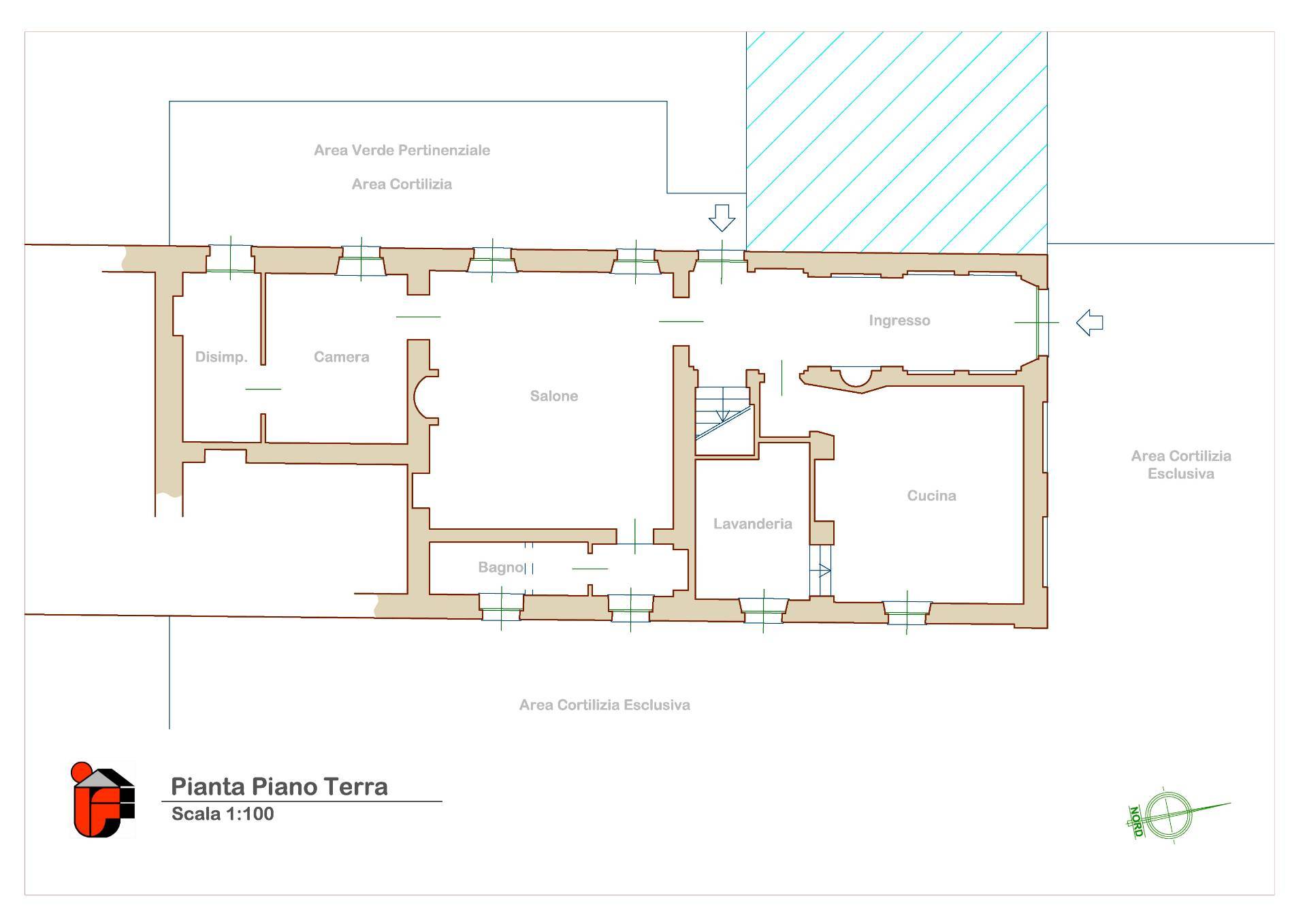
Al piano terra l'imponente ingresso conduce ad un salone affrescato, ad una raffinata e spaziosa cucina, ad un intimo salottino, ad un bagno, alla centrale termica e una zona servizi.
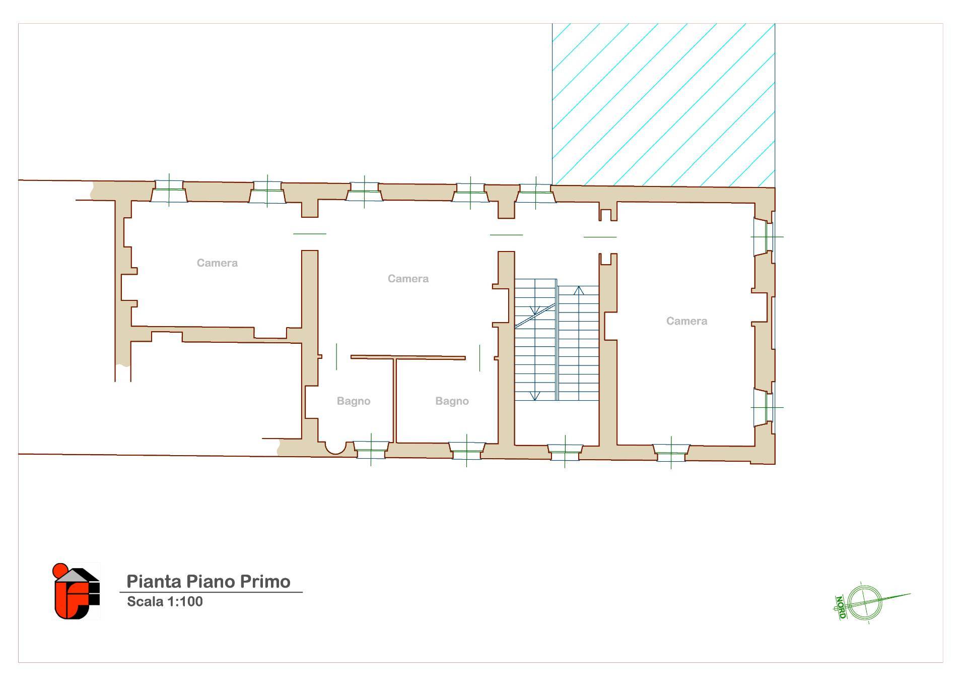
Al piano primo troviamo la zona notte composta da tre grandi camere da letto affrescate con doppi servizi.
Al piano secondo ulteriori spazi mansardati, versatili che possono essere utilizzati e personalizzati in base alle proprie esigenze.
La porzione di cascinale, terra cielo, si distingue per i dettagli storici: soffitti alti, affreschi, pavimenti d'epoca che donano eleganza agli ambienti.
Non mancano interventi moderni di ristrutturazione squisitamente studiati per non intaccare il carattere storico dell'edificio.
Una proprietà dove il fascino del passato incontra le esigenze moderne, che si adatta ad uno o più nuclei familiari o ad una incantevole struttura ricettiva, un agriturismo o un bed and breakfast dove trascorrere qualche giorno lontani dallo stress della vita quotidiana e rigenerare mente e corpo.
Contattateci per avere informazioni e dettagli su questa unica opportunità!!!
Contattaci
Immobiliare Ferrero
Piazza Marconi, 31
Vinovo (TO)
Telefono 011 9652893
Fax 011 9652893
Cellulare 335 5297942
info@immobiliareferrero.it

Ferrero Luana
Telefono 0119652893
Fax 0119652893
Cellulare 3355297942
luanaferrero@immobiliareferrero.it
Immobili simili
Ultimo aggiornamento 27-01-2026



































