Appartamento in Vendita a Torino
Zona: Mirafiori sud
Classe energetica
L'Appartamento in Vendita si trova nella zona di Mirafiori sud, in Via Timoteo Riboli.
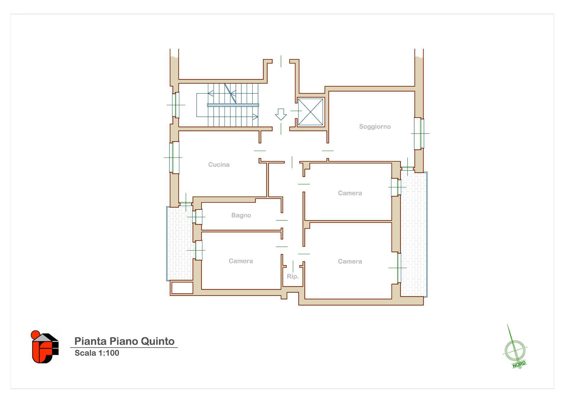
Situato al quinto piano di un edificio dotato di ascensore.
L'immobile è libero al rogito, il che significa che è immediatamente disponibile per l'acquisto.
L'immobile è composto da cinque locali, tra cui tre camere da letto.
Inoltre, la sua posizione strategica permette di raggiungere facilmente le principali vie di comunicazione della città e i servizi di prima necessità.
Ideale per chi cerca un'abitazione spaziosa e comoda.
Completa la proprietà la cantina e il box auto singolo di pertinenza.
Richiesta euro 100.000,00.
Contattaci
Immobiliare Ferrero
Piazza Marconi, 31
Vinovo (TO)
Telefono 011 9652893
Fax 011 9652893
Cellulare 335 5297942
info@immobiliareferrero.it

Ferrero Luana
Telefono 0119652893
Fax 0119652893
Cellulare 3355297942
luanaferrero@immobiliareferrero.it
Immobili simili
Ultimo aggiornamento 27-01-2026







